一、概述
U型泵适用于润滑点多,分布范围广,给油频率高的双线式干油集中润滑系统。通过双线分配器向润滑部位供送润滑脂,可满足各种机器设备的需要,对于大型机组和生产线尤为适宜。
该系列电动润滑泵可组成双线环式集中润滑系统,即系统的主管路组成环状布置,由返回润滑泵的主管道末端的系统压力来控制液压换向阀,使两条主管道交替地供送润滑脂的集中润滑系统;见外形图和外形尺寸表的规定。也可组成双线终端式集中润滑系统,即由主管道末端的压力操纵阀来控制电磁。换向阀交替地使两条主管道供送润滑脂的集中润滑系统,也见外形图和外形尺寸的规定。
该系列电动润滑泵采用双柱塞机构,运转可靠,减速机构置于泵体内,结构紧凑,体积小,配以相应的电控箱可以实现自动控制。
|
|
|
二、技术参数
型号 |
公称压力MPa |
公称流量 |
贮油器 |
配管方式 |
电机型号 |
电动机功率kW |
减速比 |
转速r/min |
减速器润滑油量L |
重量kg |
标准型号 |
引进型号 |
ml/min |
容积L |
DRB-L60Z-H |
U-25AL |
20 |
60 |
20 |
环式 |
A02-7124 |
0.37 |
1:15 |
100 |
1 |
140 |
DRB-L60Z-Z |
U-25AE |
终端式 |
160 |
DRB-L195Z-H |
U-4AL |
195 |
35 |
环式 |
Y802-4 |
0.75 |
1:20 |
75 |
2 |
210 |
DRB-L195Z-Z |
U-4AE |
终端式 |
230 |
DRB-L585Z-H |
U-5AL |
585 |
90 |
环式 |
Y90L-4 |
1.5 |
5 |
456 |
DRB-L585Z-Z |
U-5AE |
终端式 |
416 |
使用介质为锥入度不低于265(25℃,150g)1/10mm的润滑脂(NLGI0#-2#)。
|
| |
| DRB-L系列电动润滑泵外形尺寸 |
型号 |
L |
B |
H |
L1 |
L2 |
L3 |
L4 |
B1 |
B2 |
B3 |
B4 |
DRB-L60Z-H |
640 |
360 |
986 |
500 |
70 |
126 |
290 |
320 |
157 |
23 |
42 |
DRB-L60Z-Z |
780 |
640 |
450 |
200 |
160 |
DRB-L195Z-H |
800 |
452 |
1056 |
600 |
100 |
125 |
300 |
420 |
226 |
39 |
42 |
DRB-L195Z-Z |
891 |
800 |
500 |
160 |
DRB-L585Z-H |
1160 |
585 |
1335 |
860 |
150 |
100 |
667 |
520 |
476 |
244 |
111 |
DRB-L585Z-Z |
667 |
239 |
160 |
|
| |
型号 |
B5 |
B6 |
H1 |
H2 |
H3 |
H4 |
D |
d |
地脚螺栓 |
最大 |
最小 |
DRB-L60Z-H |
118 |
20 |
598 |
155 |
60 |
130 |
- |
269 |
14 |
M12x200 |
DRB-L60Z-Z |
- |
85 |
DRB-L195Z-H |
118 |
16 |
687 |
167 |
83 |
164 |
- |
319 |
18 |
M16x400 |
DRB-L195Z-Z |
- |
108 |
DRB-L585Z-H |
226 |
22 |
815 |
170 |
110 |
248 |
277 |
457 |
22 |
M20x500 |
DRB-L585Z-Z |
- |
135 |
- |
|
| |
| 三、型号说明 |
|
|
四、图型符号
|
|
|
| |
| 五、接线指示 |
 |
| |
| 六、工作原理 |
该系列电动润滑泵由柱塞泵、贮油器、换向阀、电动机等部分组成。柱塞泵在电动机的驱动下,从贮油器吸入润滑脂,压送到换向阀,通过换向阀交替地沿两个出油口输送出去,当一个出油口压送润滑脂时,另一出油口与贮油器接通卸荷。
环式结构电动润滑泵配用液压换向阀,有四个接口,外接两根供油主管分别由两根供油管引回的回油管,依靠回油管内油脂的油压推动换向阀换向。
终端式结构电动润滑泵配用电磁换向阀,有二个接口,外接二根供油主管,依靠电磁铁的得失电实现换向供油。
柱塞泵换向阀的动作原理详见使用说明书。 |
| |
七、使用说明
1、该系列电动润滑泵应安装在环境温度合适,灰尘少,振动小,便于调整、检查、维护保养及补脂方便的地方并且尽可能布置在系统的中心位置,缩短系统配管长度,保持最低压力降,使泵能产生足以克服润滑点阻力的压力。
2、使用前先向柱塞泵的减速腔内加入N220的工业齿轮油至油标规定液面。
3、向贮油器内补脂使用DJB-V70型电动加油泵从润滑泵的补给口补进,使用的润滑脂应清洁,不允许夹杂有污物。
4、润滑泵的回转方向是单向的,使用时必须按电机上旋向牌规定的旋向接线使用。
5、泵溢流阀的标准设定压力为23MPa,可以在0~20MPa范围内任意调节,在使用时不允许超过泵公称压力的15%(23MPa)。
6、环式润滑泵的液压换向阀的设定压力按5MPa调定。
7、该系列电动润滑泵为室内安装型,在室外或环境恶劣的场合使用时,必须采取防护措施。 |
| |
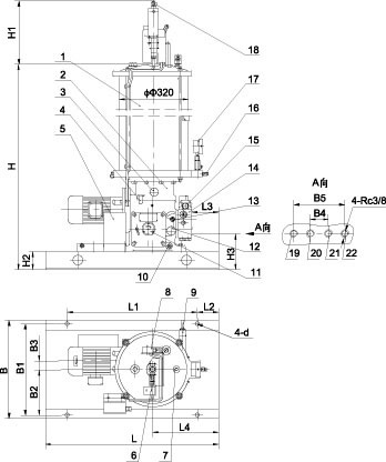
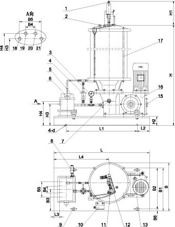
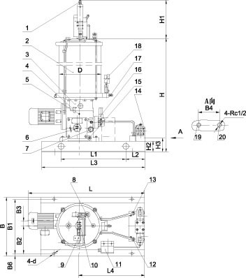
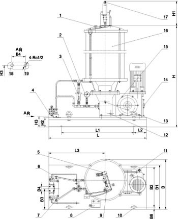
| 八、外型图 |
  |
| DRB-L60Z-H、DRB-L195Z-H型电动泵外形图 DRB-L585Z-H型电动泵外形图 |
| |
  |
| DRB-L60Z-Z, DRZB-L195Z-Z型电动泵外形图 DRB-L585Z-Z型电动泵外形图 |
| |
九、订货须知
1、本系列电动润滑泵配用以下四种形式标准电控箱,可根据不同控制要求选择。
1.1 DEA-2E型终端式电控箱
1.2 DEA-2L型环式电控箱
1.3 R1902型环式带补脂控制电控箱
1.4 R1904型终端式带补脂控制电控箱
2、本系列电动润滑泵分部件订购按下表选型 |
| |